Marlette Mobile Home Floor Plans / Triple Wide Mobile Home Floor Plans | Mobile Home Floor ... : Marlette homes agl modular manufactured mobile in new york.

Marlette Mobile Home Floor Plans / Triple Wide Mobile Home Floor Plans | Mobile Home Floor ... : Marlette homes agl modular manufactured mobile in new york.. The french country style and rustic accents throughout each home create an inviting atmosphere. Located in everett, washington, heritage has marlette manufactured homes for sale and modulars for sale. They are well known for the attention to detail and using quality building materials. Below are 9 top images from 16 best pictures collection of marlette manufactured homes floor plans photo in high resolution. The title only lists the manufacturer as spa hm, tradename as spa and no model #.

Marlette manufactured homes are customizable homes with a focus on modern design and quality craftsmanship. Satisfied customers have referred to marlette as the cadillac of modular home manufacturers. Marlette homes agl modular manufactured mobile in new york. With marlette homes, you get more than you ever imagined. These range from small to very large companies, with each one having several models.

Best Of Marlette Homes Floor Plans - New Home Plans Design
Best Of Marlette Homes Floor Plans - New Home Plans Design from www.aznewhomes4u.com
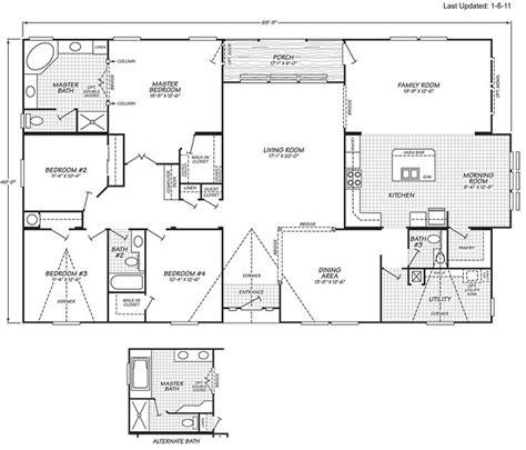
Let us help you find your home. Whats people lookup in this blog: With hundreds of customizable floor plans and options, we can take care of everything so you can move into your new modular or manufactured home sooner than you might think. Marlette homes agl modular manufactured mobile in new york. These range from small to very large companies, with each one having several models. Satisfied customers have referred to marlette as the cadillac of modular home manufacturers. Marlette homes floor plans manufactured home best style and building cartoon png 806 690 free transpa 20 best marlette mobile home floor plans marlette homes floor plans manufactured home best style and. The viola is a 2020 marlette home on display at our albany location, this home features a pocket door from the utility into the guest bathroom, double french doors into a spacious den, a large deck off the dining room, and a faux tile shower in the master bathroom.

The viola is a 2020 marlette home on display at our albany location, this home features a pocket door from the utility into the guest bathroom, double french doors into a spacious den, a large deck off the dining room, and a faux tile shower in the master bathroom.

These range from small to very large companies, with each one having several models. I have the serial numbers and the hud label. Marlette homes columbia river 2021. House plans january 09, 2019. Marlette manufactured homes are customizable homes with a focus on modern design and quality craftsmanship. Our reputation has been built, one home at a time, by consistently exceeding our customers' expectations. Size = approximate interior square feet. (24 x 60) and i am in search of the floor plan and the home foundation plan. They are well known for the attention to detail and using quality building materials. 30 industrial park rd lewistown, pa 17044. Whether you are a first time home buyer, a growing family, or an empty nester looking to downsize, we have a home designed to fit. Marlette floor plans * all home sizes are approximate square feet. Now, there are over 80 different manufacturers of mobile homes (manufactured homes).

Marlette manufactured homes floor plans; Marlette builds customizable homes with a focus on modern design and quality craftsmanship. We also hope this image of marlette mobile home floor plans the. The french country style and rustic accents throughout each home create an inviting atmosphere. What do you get with a marlette manufactured home?

Marlette Redwood II Manufactured Home | J & M Homes LLC
Marlette Redwood II Manufactured Home | J & M Homes LLC from www.jandmhomes.com
Mobile home floor plans, manufacturers, and models. Legal privacy notice for california residents builder resources privacy. By admin | july 3, 2015. The viola is a 2020 marlette home on display at our albany location, this home features a pocket door from the utility into the guest bathroom, double french doors into a spacious den, a large deck off the dining room, and a faux tile shower in the master bathroom. Marlette manufactured homes floor plans; Marlette homes agl modular manufactured mobile in new york. House floor plan manufactured housing marlette oregon 1493 sq ft palm harbor heritage home center homes golden west 2020 mobile for. For more than 60 years marlette homes has been building affordable, quality manufactured and modular homes.

Marlette has been building quality, affordable manufactured homes and modular homes for residents of the pacific northwest for over 60 years.

From your modular and manufactured home builders at marlette homes, get the floor plan, amenities and quality you want. For more than 60 years marlette homes has been building affordable, quality manufactured and modular homes. Compare specifications, view photos, and take virtual 3d home tours. Marlette builds customizable homes with a focus on modern design and quality craftsmanship. Get specialized pricing from your local dealer by requesting a personal price quote on any floor plan, or if you are ready to move in now, shop manufactured homes for sale. Agl homes offerings from titan homes, including their avenger, brentwood, new england manor sectional homes and modular log sided cape cod and chalet plans. Located in everett, washington, heritage has marlette manufactured homes for sale and modulars for sale. Wood ceiling beams, rustic range hoods, arched thresholds, and luxurious bathrooms. We supply to the entire seattle area, including king, snohomish, skagit, whatcom and pierce counties. If you looking for marlette mobile home floor plans the olympus by marlette hermiston and you feel this is useful, you must share this image to your friends. With a marlette indiana manufactured home, you get more than you ever imagined, including comfort, security, and a home you can be proud of. They are well known for the attention to detail and using quality building materials. With hundreds of customizable floor plans, they can take care of everything so you can move into your new modular or manufactured home sooner than you think.

Compare specifications, view photos, and take virtual 3d home tours. The title only lists the manufacturer as spa hm, tradename as spa and no model #. Marlette is a very popular brand for mobile homes. From your modular and manufactured home builders at marlette homes, get the floor plan, amenities and quality you want. Legal privacy notice for california residents builder resources privacy.

Elegant Single Wide Mobile Home Floor Plans And Pictures ...
Elegant Single Wide Mobile Home Floor Plans And Pictures ... from www.aznewhomes4u.com
We supply to the entire seattle area, including king, snohomish, skagit, whatcom and pierce counties. Marlette tennessee homes are crafted with extreme precision and care from the clayton bean station home building facility in beautiful u0003bean station, tennessee. Marlette homes columbia river 2021. Best of marlette homes floor plans new home plans design from marlette mobile home floor plans 10 things to consider when choosing house plans online if you were to go to google and type in house plans in the search browser you would get exceeding 156,000,000 hits in under a second. Whether you are a first time home buyer, a growing family, or an empty nester looking to downsize, we have a home designed to fit. Marlette is a very popular brand for mobile homes. Marlette mobile home floor plans the olympus by marlette hermiston is related to house plans. Marlette manufactured homes floor plans;

These range from small to very large companies, with each one having several models.

With hundreds of customizable floor plans and options, we can take care of everything so you can move into your new modular or manufactured home sooner than you might think. The floor plans they offer are built to last a lifetime. Best of marlette homes floor plans new home plans design from marlette mobile home floor plans 10 things to consider when choosing house plans online if you were to go to google and type in house plans in the search browser you would get exceeding 156,000,000 hits in under a second. Marlette 24 x 56 1306 sqft mobile home factory select homes. Marlette mobile home floor plans the olympus by marlette hermiston is related to house plans. Marlette tennessee homes are crafted with extreme precision and care from the clayton bean station home building facility in beautiful u0003bean station, tennessee. Marlette homes agl modular manufactured mobile in new york. The marlette model has 4 beds and 2 baths. Marlette builds customizable homes with a focus on modern design and quality craftsmanship. House floor plan manufactured housing marlette oregon mobile home mobil transpa background png clipart hiclipart Ask your housing consultant about the other great features that come standard on the marlette manufactured home. Marlette homes for more than 60 years marlette homes has been building affordable, quality manufactured and modular homes. The viola is a 2020 marlette home on display at our albany location, this home features a pocket door from the utility into the guest bathroom, double french doors into a spacious den, a large deck off the dining room, and a faux tile shower in the master bathroom.